Softline 82
Ventanas Pvc de máxima eficiencia softline 82

El sistema que no deja pasar ni el ruido ni el frío
Cuando hablamos de Softline 82 , hablamos de eficiencia sin rodeos. No es una ventana cualquiera. Es un sistema pensado para que tu casa no pierda energía, ni confort, ni estética. Con perfiles de 82 mm de profundidad, triple junta, y refuerzo de acero, esta ventana está preparada para lo que le eches. Lo notas cuando el calor de dentro se queda donde debe. Lo notas cuando cierras y el silencio es total.
No hace falta vivir en una casa de diseño para apostar por unas ventanas Joswal con máxima eficiencia. Basta con querer vivir mejor. Si optas por el cambio a ventanas Joswal , notarás la diferencia tanto térmica como acústica en tús ventanas, notando un mejor confort y aislamiento en tú vivienda.








Sobre tu nueva ventana
Características de softline 82
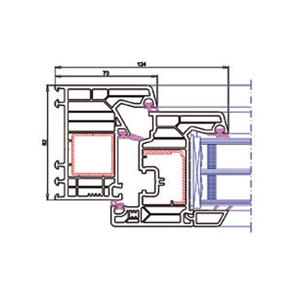
Detalle
Detalles que marcan la diferencia sin que se vean
Los diseños Joswal con perfiles Softline 82 tiene todo lo que buscas: aislamiento, diseño, durabilidad y cero complicaciones. Es un sistema cerrado, robusto, con una estructura multicámara y opción de triple acristalamiento. Tiene coeficiente térmico Uw de hasta 0,67 W/m²K, y eso, traducido, significa que mantienes la temperatura estable sin que salte el aire acondicionado cada media hora.
Ventajas técnicas clave:
- 82 mm de profundidad que bloquean el frío y el calor.
- Junta central de triple estanqueidad.
- Finos acabados con colores espectrales o foliados para elegir estilo.
- Opciones bicolor para que encaje dentro y fuera.
Es compatible con proyectos Passivhaus y cumple el CTE. Lo puedes combinar con otros sistemas como Vekamotion 82 para grandes ventanales, Softline 70 o Softline 76 para otras zonas, o incluso con Ekosol si buscas una opción compacta.
Con Joswal, cada zona de tu casa puede tener su solución de ventana oscilobatiente o abatible sin perder coherencia.
Confort durante todo el año y ahorro a largo plazo
Estas son ventanas eficiencia de verdad. No hay fuga, no hay ruido, no hay entrada de humedad. Todo está pensado para cerrar bien, sellar mejor y que no tengas que preocuparte del mantenimiento. Lo instalamos en viviendas nuevas, en reformas y en rehabilitaciones térmicas. Porque se adapta, porque rinde, porque cumple.
Y si te preocupa el presupuesto, tranquilo. Podemos darte soluciones para todos los niveles de aislamiento. Hacemos todo a medida, y te asesoramos según el uso, la orientación, el ruido o el tipo de obra. En cuanto a medidas y precios, hay margen para adaptarnos a lo que necesitas sin sacrificar prestaciones.
Y si lo que necesitas es abrir espacio o integrar la terraza en el salón, entonces mira sistemas como Vekaslide Hi 5 o el propio Vekamotion 82 , que están pensados para ventanas máxima eficiencia en grandes vanos. Todo compatible, todo coordinado, todo bien rematado.
Si todavía tienes dudas, lo mejor es que veas resultados reales. Tenemos muchos ejemplos de instalaciones de ventanas realizadas en toda la Comunidad de Madrid con este sistema. Viviendas que han mejorado su eficiencia, reducido el ruido y ganado confort con solo cambiar sus antiguas carpinterías por ventanas Softline 82 de Joswal. Así puedes comprobar cómo se ven, cómo funcionan y por qué cada vez más gente las elige. Porque cuando algo está bien hecho, se nota. Y se nota mucho.
Especificaciones
Prestaciones técnicas
Ventanas 1230 x 1480 (2 hojas)
Transmitancia térmica Uf
1,0 W/m2 K
Permeabilidad al aire
Clase 4
Resistencia al viento
Clase C5
Estanqueidad al agua
E900
Aislamiento acústico (4/12/4/12/4)
36 (-1;-4) dB
Aislamiento acústico (6+6/12/6/12/4+4)
45 (0;-2) dB
Secciones
