Vekaslide Hi 5
Abre tu hogar a la luz con la ventana corredera vekaslide hi-5 en pvc

Una corredera que hace espacio y silencio
Los diseños Joswal de ventanas PVC Vekaslide Hi 5 no son una corredera cualquiera, sino un nuevo concepto de deslizante. Con solo girar la manilla, sientes cómo todo encaja. Se desliza suave, sin golpes. Y cuando cierras, se hace el silencio. Porque estas ventanas están pensadas para eso: para abrir tu casa al exterior sin perder nada de aislamiento.
Y si vives en Madrid, lo sabes: entre el calor del verano y el ruido del tráfico, lo que necesitas es una ventana que se comporte. Que aísle, que aguante y que, ya que estamos, quede bien. Pues Vekaslide Hi 5 lo hace todo. Y con estilo. Y no solo en viviendas nuevas. En reformas, este sistema marca la diferencia: renuevas tu fachada sin obras invasivas y con una mejora inmediata en confort.








Sobre tu nueva ventana
Características de vekaslide hi 5
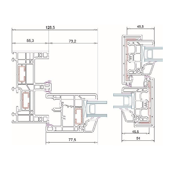
Detalle
Mucho cristal, poco perfil y cero ruido
El sistema Vekaslide Hi 5 está pensado para grandes superficies acristaladas con el mínimo de perfilería visible. Perfecto si quieres convertir tu salón en una galería abierta a la terraza, o si buscas ese efecto de "pared de cristal" sin renunciar al confort térmico. Y no, no hace falta vivir en un chalet de revista. Lo hemos instalado en unifamiliares, en pisos altos y hasta en bajos con jardín. Funciona igual de bien en viviendas amplias que en espacios reducidos donde quieres ganar luz sin perder intimidad.
Ventajas técnicas del sistema:
- Aislamiento térmico y acústico certificado (clase A+).
- Perfil multicámara con refuerzo de acero.
- Hoja corredera activa que se desliza sin esfuerzo.
- Cierre hermético con varias juntas.
- Umbral bajo accesible, ideal para interiores/exteriores continuos.
- Compatible con colores foliados o colores espectrales como gris antracita o negro ultramate.
- Posibilidad de triple acristalamiento para climas extremos o zonas ruidosas.
Este sistema lo fabricamos con perfiles que son un referente europeo en calidad y rendimiento. Está pensado para quienes buscan una corredera que sea tan elegante como funcional, sin renunciar a un acabado limpio y minimalista.
Vekaslide Hi-5 comparte espacio en el catálogo con otras soluciones, que tienen sus propias ventajas según el tipo de vivienda o el nivel de eficiencia que necesites:
No es solo una cuestión de estética. El diseño Joswal y la tecnología del sistema hace que cada apertura sea ligera, suave y precisa. Incluso con hojas grandes, el esfuerzo es mínimo. Y al cerrarla, sientes esa presión de hermeticidad que dice: aquí no pasa ni el ruido ni la temperatura.
Diseño moderno para casas que quieren abrirse al exterior
Si tienes terraza, porche o jardín, esta es tu ventana. Pero también si vives en un piso alto con vistas y no quieres renunciar a ellas por culpa de un marco tosco o una perfilería que corta el paisaje. Las ventanas correderas Vekaslide Hi 5 son ideales para quienes valoran el diseño, el confort y el silencio.
Y si estás reformando o construyendo desde cero, este sistema encaja en cualquier tipo de arquitectura. Ya sea fachada moderna, interior clásico o espacios mínimos, hay una configuración que se adapta a tu espacio y a tu estilo. Su versatilidad también permite combinar diferentes acabados y personalizar la apertura según el tamaño de vano disponible.
Aplicaciones ideales para esta corredera:
- Cerramientos de terraza integrados al salón.
- Salidas a jardín sin barreras.
- Fachadas acristaladas en pisos altos.
- Reemplazo de correderas antiguas sin aislamiento.
- Separaciones interiores con aislamiento acústico
Además, puedes elegir entre una amplia gama de acabados: desde blancos neutros hasta maderas realistas o acabados ultramate espectral que resisten huellas, rayos UV y el paso del tiempo sin despeinarse. Estos detalles marcan la diferencia no solo en apariencia, sino en mantenimiento y durabilidad.
Y si todavía no decides cuál es la mejor opción para tu casa, no pasa nada. Nuestro equipo técnico te asesora sin compromiso. Te damos muestras, simulaciones y modelos reales de ventanas para que veas de primera mano lo que puedes conseguir.
Si buscas abrir tu casa a la luz, al paisaje y al confort térmico sin renunciar al diseño, nuestras ventanas con perfiles Vekaslide Hi 5 son la opción que marca la diferencia. No son solo ventanas PVC, son una experiencia: silenciosas al cerrar, suaves al deslizar, sólidas al proteger. Lo que ves desde dentro cambia por completo cuando lo haces a través de un sistema bien diseñado.
En Joswal trabajamos con ventanas de última generación, siempre ajustadas a lo que realmente necesitas. ¿Quieres saber cuánto te costaría? Accede a nuestra sección de precios y medidas, cuéntanos tu idea y te damos una propuesta sin rodeos. Con asesoramiento técnico, instalación profesional y resultados que puedes ver en cada detalle.
Especificaciones
Prestaciones técnicas
Ventanas
Aislamiento térmico
1,3 W/m2 K
Permeabilidad al aire
Clase 4
Resistencia al viento
Clase C1
Estanqueidad al agua
Clase 9A
Aislamiento acústico (4/16/4)
38dB(A)
* Datos válidos para configuraciones de Ventanas de 2 hojas OB 1600 x 1700 mm. Ensayos realizados con vidrio de 4/12/4 mm.
Secciones
